Представляем вашему вниманию проект современного одноэтажного каркасного дома PODIUM.
Просторные комнаты, высокие потолки и открытые планировки создают ощущение свободы.
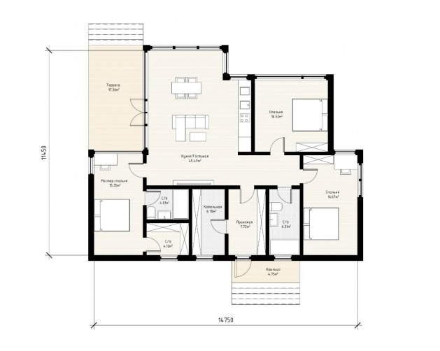
Проект PODIUM предусматривает рациональное использование жилого пространства, обеспечивая комфортное проживание для каждого члена семьи.
Дом оборудован большими панорамными окнами, которые обеспечивают попадание максимального количества естественного света.
Цены указаны за дом на сваях
Варианты комплектаций:
Тёплый контур без фасада - 6 765 000 р.
Тёплый контур с фасадом - 8 056 500 р.
Предчистовая без фасада - 9 348 000 р.
Предчистовая - 10 332 000 р.
Предчистовая + отделка С/У - 10 885 500 р.
Под ключ - 12 238 500 р.
Выбор местоположения
Мы свяжемся с Вами в течение дня.