Надежда 88 м2 №932

Цена строительства от 3 700 000 ₽* * Стоимость не является окончательной
Заявка на консультацию
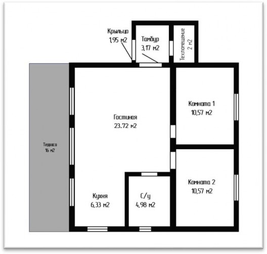
  • Общая площадь 80 м2
  • Материал стен Каркасно-панельные
  • Количество этажей 1
  • Подвал Нет
  • Мансарда без мансарды
  • Гараж Нет
  • Терраса Да
  • Проживание Круглогодичное
  • Количество комнат 3
  • Количество спален 2
  • Количество санузлов 1
  • Вид проекта дом
  • Застройщик МоноЛит
  • Крыша Двускатная
  • Можно купить домокомплект Да
  • Модульный тип строения Нет
Планировки
Описание проекта

«Надежда» 88,2 м² уютный одноэтажный дом «Анна» — это современное решение для комфортной жизни небольшой семьи. Общая площадь дома составляет 88,2 квадратных метра, что позволяет разместить все необходимые помещения для полноценного проживания.

Дом «Анна» — это гармоничное сочетание функциональности, комфорта и современного дизайна, создающее идеальные условия для счастливой жизни вашей семьи.

Комплектации:

ДОМОКОМПЛЕКТ 1 275 000 р.

СТАНДАРТ 3 700 000 р.

КОМФОРТ 5 100 000 р.

КОМФОРТ+ 6 400 000 р.

Вас может заинтересовать
Вас может заинтересовать

Выбор местоположения

Задать вопрос / написать нам

E-mail: domgis@mail.ru

Мы свяжемся с Вами в течение дня.

Тех. поддержка
Предмет обращения:
Тукущая страница

Мы свяжемся с Вами в течение дня.

Уведомление
Предмет обращения:
Тукущая страница
Обратный звонок
Обратный звонок
Выберите ваш город
Пожаловаться

Объявление опубликовано.
Изменения сохранены

Период публикации - бессрочный, при условии подтверждения актуальности каждые 50 дней. Уведомления будут отправляться на Вашу электронную почту.

Выберите причину снятия с публикации

Снятые с публикации объявления не участвуют в поиске и недоступны для подробного просмотра.

Для повторной публикации нажмите «Вернуть в публикацию»