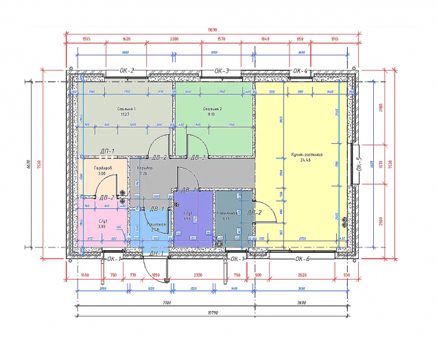
Откройте для себя идеальное сочетание надежности и уюта с проектом ДаВинчи — прочным и долговечным решением для комфортной жизни за городом. Этот стильный дом с двумя спальнями и просторной кухней-гостиной станет Вашим личным оазисом, где каждая деталь продумана для Вашего удобства. Благодаря использованию современных материалов, таких как Сибит и кирпич, мы обеспечили высокую теплоизоляцию, надежность и эстетическую привлекательность. Просторная кухня-гостиная создаст идеальные условия для семейных вечеров и встреч с друзьями, а две уютные спальни подарят комфорт и спокойствие.
Этот дом — отличный выбор для тех, кто ценит качество, долговечность и современный дизайн.
Свяжитесь с нами сегодня и сделайте шаг к своему будущему уютному дому!
Теплый контур 5.500.000 р., предчистовая 7.100.000 р.
Выбор местоположения
Мы свяжемся с Вами в течение дня.